Beck+Heun - ROKA TOP
ROKA-TOP 2
Unutrašnja revizija
Klasična nadgradna kutija za laku reviziju – Novi dodaci za zaptivanje. Standardna varijanta ROKA-TOP® 2 je opremljena zaptivnim poklopcem. Poboljšana je posebno u oblasti revizije. PVC modul za reviziju sa integrisanim blokom od pene pričvršćenim na bočnu stranicu pruža veću izolaciju i atraktivan izgled. Tolerancije ugradnje u zoni revizije skrivene su inovativnim stepenastim falcom između bočnog dela i poklopca za zatvaranje. Rezultat je čisto zatvoren vidljiv spoj u oblasti revizije.
Blok od pene
Optimalna izolacija prostora za otkrivanje omogućena je novim blokom pene koji je pričvršćen na bočnu ploču.
Maksimalna dubina ugradnje: 92mm
Usb = ≤ 0,85 W/(m²K)
Monolitna fasada (malter)
ETICS fasada – termoizolacija + mrežica + malter (fasadna obloga)
2A – Ubacite sidro za pričvršćivanje u žleb spojnice
2B – Postavite kutiju
1A – Pričvrstite traverzu za ram prozora
1B – Vijak
1C – Obratiti pažnju na izolaciju traverze
1D – Preporučuje se upotreba hermetičke spojne trake
Finalni izgled kutije roletne ugrađene na poziciju
3A – Ubacite revizioni poklopac u traverzu
3B – Zatvorite revizioni poklopac
Ravna dvostrana PVC vodilica 60 x 51mm G2
Ravna PVC vodilica 60 x 51mm G2
Roll-off traverza PVC 100 – max. dubina ugradnje 92mm
Roll-off traverza PVC 85 – max. dubina ugradnje 70mm
Vertikalni presek kutije, dimenzije 345 x 300
Horizontalni presek kutije sa jednim zastorom i sistemom sa PVC ravnim vodilicama 60 x 51 mm G2
Horizontalni presek kutije sa podelom zastora na dva ili više i kombinacijom vodilica PVC ravne i PVC ravne dvostrane vodilice 60 x 51 mm G2
STABILUM DB – plafonski nosač
Ojačanje koje je posebno konstruisano integrisano rešenje na strani kutije. Fiksiranje za plafon je veoma lako zahvaljujući posebnoj geometriji u gornjem delu.
STABILUM SK – stabilizaciona konzola
Ojačanje opremljeno podlogom otpornom na pritisak tokom montaže i čvrsto pričvršćeno za konstrukciju na nadvratniku ili plafonu.
ROKA-TOP 2RG
Spoljašnja revizija
ROKA-TOP® 2 RG je zatvorena varijanta roletne sa strane prostorije. Pošto je ovaj sistem revidiran spolja, može se potpuno malterisati sa strane prostorije i tako nevidljivo integrisati.
Varijanta RG je apsolutno hermetički zatvorena, jer nema spojeva sa unutrašnje strane. Još jedna posebna karakteristika je ALU RG-TG sistem vodilica. Ovo je termički izolovan sistem koji garantuje nepropusnost između šine vodilica i prozora u kišnim uslovima.
Maksimalna dubina ugradnje: Neograničeno
Usb = ≤ 0,85 W/(m²K)
Monolitna fasada (malter)
ETICS fasada – termoizolacija + mrežica + malter (fasadna obloga)
Vijčani spoj kroz okvir prozora sa ojačanjem na kutiji
1A – Ubacivanje sidra u žleb spojnice
1B – Postavljanje kutije na poziciju
Finalni izgled kutije roletne ugrađene na poziciju
Montaža roll-off profila (revizije) pričvršćivanjem na okvir
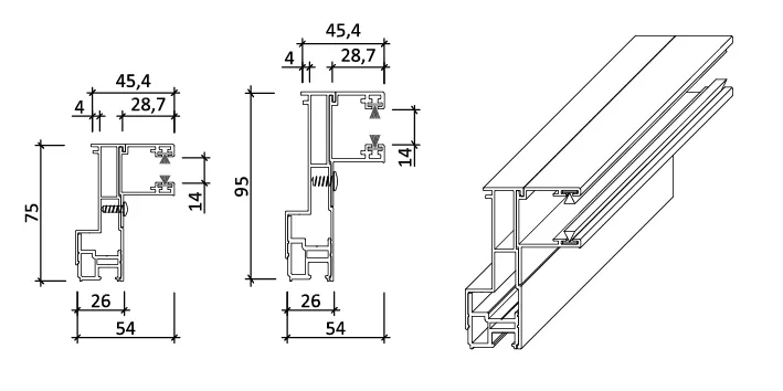
AL dvostrane ravne RG-TG vodilice dimenzija 75 i 95mm
AL ravne RG-TG vodilice dimenzija 75 i 95mm – Dostupna je i PVC varijanta 75mm vodilice
Aluminijumski roll-off profil 60mm za AL vodilice 95mm i širinu revizije 100mm
Aluminijumski roll-off profil 40mm za AL vodilice 75mm i širinu revizije 80mm
Vertikalni presek kutije, dimenzije 300 x 300
orizontalni presek kutije sa jednim zastorom i sistemom sa ALU ravnim RG-TG vodilicama
Horizontalni presek kutije sa podelom zastora na dva ili više i kombinacijom vodilica ALU ravne RG-TG i ALU ravne dvostrane RG-TG vodilice
Horizontalni presek kutije sa podelom zastora na dva ili više i kombinacijom vodilica ALU ravne RG-TG sa pokrivnim delom između dve vodilice na sredini u širini od 30 mm
STABILUM DB – plafonski nosač
Ojačanje koje je posebno konstruisano integrisano rešenje na strani kutije. Fiksiranje za plafon je veoma lako zahvaljujući posebnoj geometriji u gornjem delu.
STABILUM SK – stabilizaciona konzola
Ojačanje opremljeno podlogom otpornom na pritisak tokom montaže i čvrsto pričvršćeno za konstrukciju na nadvratniku ili plafonu.
ROKA-TOP 2 SHADOW
sistem žaluzina
Provereni sistem spoljašnjih venecijanera je dodatno poboljšan i detaljno ojačan. Standardni umetak za pojačanje, krajnja šina kutije i traka za pričvršćivanje integrisana u izolacioni klin obećavaju još veću stabilnost i podršku. Posebna pažnja je takođe posvećena vizuelno revidiranom spoljašnjem panelu. Ovo ima istu visinu iznutra i spolja i na taj način obezbeđuje ujednačen izgled. Idealna za kombinovanu upotrebu sa roletnom.
Maksimalna dubina ugradnje: 92mm
Usb = ≤ 0,85 W/(m²K)
Monolitna fasada (malter)
ETICS fasada – termoizolacija + mrežica + malter (fasadna obloga)
B – Opciono rešenje
C – Opciono rešenje
A – Standardna ugradnja
Vertikalni presek kutije, dimenzije 345 x 300
Horizontalni presek kutije sa sistemom žaluzina i aluminijumskim štelujućim vodilicama.
Horizontalni presek kutije sa podelom zastora na dva ili više i kombinacijom vodilica PVC ravne i PVC ravne dvostrane vodilice 60 x 51 mm G2
BeClever - CleverBox
CleverBox Thermic
Donja revizija
CleverBox roletne obuhvataju karakteristično strukturirano kućište od plastike, ugrađeno na okvir prozora i fiksirano i usidreno u udubljenje prozora.
Njihovu upotrebu treba razmotriti u fazi projektovanja ili adaptacije objekta. One zahtevaju povećanje otvora prozora za visinu izabrane kutije.
U zavisnosti od zahteva i preferencija našeg klijenta, pojedinačni proizvodi se mogu diverzifikovati u pogledu dimenzija kutije, tipa revizije, dodavanja komarnika, vrste izolacije, načina završne obrade i ugradnje. i vrstu kontrole.
– Dimenzije kutije: 205x255mm, 245×255 mm
– Donji revizioni otvor sa strane prostorije
– Potpuna ili delimična ugradnja u fasadu
– Ugradna dubina bez integrisanog komarnika: 98mm
– Ugradna dubina sa integrisanim komarnikom: 80mm
Usb = ≥ 0,61 W/(m²K)
Potpuna ugradnja u fasadu
Termoizolacija sa spoljne strane
Termoizolacija sa unutrašnje strane
Ugradnja bez oblaganja fasadom
Bez obzira na oblik otvora garaže vrata je moguće namontirati sa unutrašnje strane prostorije.
Bez obzira na oblik otvora garaže vrata je moguće namontirati sa unutrašnje strane prostorije.
CleverBox Thermic WF
Unutrašnja revizija
CleverBox roletne obuhvataju karakteristično strukturirano kućište od plastike, ugrađeno na okvir prozora i fiksirano i usidreno u udubljenje prozora.
Njihovu upotrebu treba razmotriti u fazi projektovanja ili adaptacije objekta. One zahtevaju povećanje otvora prozora za visinu izabrane kutije.
U zavisnosti od zahteva i preferencija našeg klijenta, pojedinačni proizvodi se mogu diverzifikovati u pogledu dimenzija kutije, tipa revizije, dodavanja komarnika, vrste izolacije, načina završne obrade i ugradnje. i vrstu kontrole.
– Dimenzije kutije: 205x255mm, 245×255 mm
– Bočni revizioni otvor sa strane prostorije
– Spoljašnja ugradnja
Ugradna dubina nije ograničena
Usb = ≥ 0,61 W/(m²K)
Termoizolacija sa spoljne strane
Bez spoljne termoizolacije
Završne lamele
Završne lamele
CleverBox Soft
Unutrašnja revizija
CleverBox roletne obuhvataju karakteristično strukturirano kućište od plastike, ugrađeno na okvir prozora i fiksirano i usidreno u udubljenje prozora.
Njihovu upotrebu treba razmotriti u fazi projektovanja ili adaptacije objekta. One zahtevaju povećanje otvora prozora za visinu izabrane kutije.
U zavisnosti od zahteva i preferencija našeg klijenta, pojedinačni proizvodi se mogu diverzifikovati u pogledu dimenzija kutije, tipa revizije, dodavanja komarnika, vrste izolacije, načina završne obrade i ugradnje. i vrstu kontrole.
– Dimenzije kutije: 205x215mm
– Bočni revizioni otvor sa strane prostorije
– Spoljašnja ugradnja
Ugradna dubina bez integrisanog komarnika: 98mm
Ugradna dubina sa integrisanim komarnikom: 80mm
Usb = ≥ 0,61 W/(m²K)
Termoizolacija sa spoljne strane
| Bez spoljne termoizolacije |
Bez obzira na oblik otvora garaže vrata je moguće namontirati sa unutrašnje strane prostorije.
CleverBox Thermic WF
Kutija za žaluzine
CleverBox žaluzine predstavljaju rešenje koje daje modernu i bezvremensku notu staklenim fasadama. Zahvaljujući visokom nivou kontrole nad uglom lamela, moguće je postići optimalnu količinu senke i stvoriti prijatnu unutrašnju atmosferu. Lamele reflektuju većinu sunčeve svetlosti pre nego što stigne do prozora, obezbeđujući povoljne optičke i termičke uslove.
CleverBox spoljašnje žaluzine odlikuju se atraktivnim izgledom, jednostavnom instalacijom i dodatnim funkcijama kao što su električni pogon i rolo mreža protiv insekata. Svi korišćeni komponenti u proizvodnji sistema imaju visoku čvrstoću i otpornost na nepovoljne vremenske uslove.
Žaluzine pomažu u održavanju prijatne temperature u domu tokom leta, reflektujući do 95% sunčevih zraka! Toplota ostaje van prozora, sprečavajući pregrevanje prostorija. Spoljašnji venecijaneri obezbeđuju prijatnu temperaturu u enterijerima tokom leta, dok značajno smanjuju troškove povezane sa radom klima uređaja i drugih rashladnih uređaja.
– Dubina kutije 255 mm
– Pristup za servisiranje spolja
– Dimenzije kutije za venecijanere: 245×255 mm
– Pristup za servisiranje spolja
– Opcija potpuno ugrađene kutije
– Maksimalna širina profila prozora: neograničena
Arhitektonska čistoća
Jednostavna instalacija
Estetika završne obrade i širok spektar boja Kućište CleverBox roletni nudi širok izbor boja i dizajna, što omogućava prilagođavanje njihovog izgleda individualnim preferencijama investitora. Ponuđeni dekor uključuje novu generaciju Woodec folije, koja verno reprodukuje izgled i karakter pravog drveta u kombinaciji sa visokom izdržljivošću i performansama. S druge strane, lamele u venecijanerima (u zavisnosti od proizvođača) dostupne su u raznim varijantama boje laka, što omogućava usklađivanje sa individualnim ukusima. |
EXTE - Elit XT PVC
Elit XT PVC
Unutrašnja revizija
Klasično rešenje za renovaciju
Sa svojim posebnim principom platforme, EXTE ELITE XT sistemi kutija za roletne nude savršeno rešenje za svaku situaciju. U klasičnoj verziji poklopca kutije za renoviranje, revizioni otvor je sa unutrašnje strane prostorije. Ovo obezbeđuje najveći mogući otvor za održavanje. Aluminijumska zaštita sa komarnikom može biti već ugrađena ili se može dodati vrlo jednostavno po potrebi.
*U koliko je potreban sistem donje revizije, standardni revizioni otvor (unutrašnji), se okrece za 180 stepeni i na taj način formira sistem sa donjom revizijom.
Vrednosti toplotne izolacije: USB do 0.43 W/m2*K
Vrednost izolacije buke: do 49 dB
Dubina ugradnje: Neograničeno
Donja revizija
Optimalno rešenje u novogradnji
Kada se kutija EXTE ELITE XT koristi kao rešenje u novogradnji, sa revizionim otvorom u donjem delu, kutija se može malterisati sa svih strana. Na taj način se unutrašnji otvor može obezbediti gipsanim uglovima i jednostavno omalterisati.
Sistem nudi nekoliko gipsanih baznih nosača od aluminijuma i plastike i specijalne ankere za uvrtanje. Sa otvorom za održavanje ispod, gornji izolacioni klin se drži u položaju u žlebu i ne može da ispadne kada je poklopac za održavanje otvoren. Ovo u velikoj meri olakšava rad na mestu instalacije.
Vrednosti toplotne izolacije: USB do 0.43 W/m2*K
Vrednost izolacije buke: do 49 dB
Dubina ugradnje: do 92mm sa revizionim otvorom 100mm
Varijante sistema
Vinkle za izolaciju
PVC adapter za prozore
Spajanje dve kutije rolni
Opciono ojačanje
Napredni sistem izolacije
Maksimalno zatvaranje
Sidra za montažu Donji ili unutrašnji revizioni otvor
Sidra za montažu Spoljni revizioni otvor
Bravica za kopčanje
Vodilice sa 35 mm širine za izolaciju slepog rama u WDVS sistemu izolacije, ili vodilice sa 60 mm za integrisani komarnik.
INTEGRISANA ZAŠTITA OD INSEKATA
UBEDLJIVO REŠENJE SA VISOKIM KOMFOROM
Zaštita od insekata se nalazi u EXTE ELITE XT između kućišta roletne i prozora. To znači da je kapacitet roletne nezavisan od prisustva integrisanog komarnika. *Ovo važi za sve tipove otvaranja.
Rolo komarnik je postavljen u stabilano aluminijumsko kućište zajedno sa mehanizmom opruge. Ovo omogućava da se zaštita od insekata reparira nezavisno od kutije. Aluminijumska zaštita rolo komarnika je jednostavno pričvršćena između ulaza u kutiji.
Na kutijama sa otvorom za reviziju iznutra, ispod i spolja, zaštita od insekata prozora može se naknadno dodati u bilo kom trenutku do visine elementa od 2.550 mm uključujući kutiju.
Cela operacija je brza i laka. Vodilice komarnika su već posebno pripremljene za ovu svrhu. Kada je revizioni poklopac uklonjen, potrebno je samo da umetnete aluminijumski deo sa rolo komarnikom.
*Ugradnja integrisanih komarnika nije moguća u varijanti sa spoljnim žaluzinama.
Integrisana zaštita od insekata u EXTE ELITE XT. Stabilno aluminijumsko kućište komarnika se lako ubacuje u vodilicu. Element za zaštitu od protoka smanjuje buku kotrljanja u kućištu.
Šina vodilica za zaštitu od insekata može se vrlo jednostavno i jeftino opremiti aluminijumskom sekcijom po potrebi.
Brzo, lako i jednostavno
Podela je ušrafljena u kutiju, a specijalni umetci su dostupni za spojnice ili separatore. Posebna karakteristika ovog rešenja je da se rotirajući umetci mogu ubaciti u podelu sa obe strane. Dobijeni otvor u duploj glavi je tada dovoljno velik za osovinu od 60mm, što u velikoj meri olakšava demontažu, posebno sa izbočenom kutijom i pomerenim ulazom.
Ovo visokokvalitetno rešenje sa pomerenim ulazom obezbeđuje kompletan ležaj separatora sa dvodelnim poklopcem. Ovim se u potpunosti izbegava bilo kakvo „zatvaranje“ kućišta. Montaža i demontaža su takođe u velikoj meri olakšani dvodelnim poklopcem.
Pomereni ulaz sa ležajem separatora i dvodelnim poklopcem za brzu montažu
Umetak za razdvajanje (levo) ili spajanje (desno) se može umetnuti u duplu glavu. Montaža i demontaža se stoga mogu izvršiti brzo čak iu najskučenijim prostorima!
Elit XT PVC
Spoljna revizija
Rešenje za maksimalnu nepropustnost vazduha
Kad god je potrebna maksimalna nepropusnost u pasivnim kućama ili javnim zgradama, EXTE ELITE XT sistem kutija za roletne sa spoljnim revizionim otvorom nudi idealno rešenje. Ovo rešenje se postiže jednostavnim pomeranjem osnovnog elementa.
Ovo omogućava da kutija bude potpuno malterisana u unutrašnjosti i hermetički zatvorena. Ako nije potrebna zaštita od insekata, otvor se zatvara aerodinamičnim poklopcem otvora na kopče od PVC-a.
Ovo olakšava montažu, jer više nema potrebe za pričvršćivanjem vijcima na slepi okvir. Mogućnost malterisanja dvodelnih vodilica se ogleda u tome da čak i kada se pokriju fasadom, istovremeno omogućavaju demontiranje sistema. Za podeljene elemente, standardne vodilice se dovode do potrebnih dimenzija duplim presekom.
Vrednosti toplotne izolacije: USB do 0.43 W/m2*K
Vrednost izolacije buke: do 49 dB
Dubina ugradnje: Neograničeno
Dvodelna vodilica omogućava demontažu kada je malterisana. Izolaciona traka se takođe može opciono postaviti u zadnju komoru za idealno povezivanje u WDVS sistemu termoizolacije.
Varijante sistema
Vinkle za izolaciju
PVC adapter za prozore
Spajanje dve kutije rolni
Opciono ojačanje
Napredni sistem izolacije
Maksimalno zatvaranje
Sidra za montažu Donji ili unutrašnji revizioni otvor
Sidra za montažu Spoljni revizioni otvor
Bravica za kopčanje
INTEGRISANA ZAŠTITA OD INSEKATA
UBEDLJIVO REŠENJE SA VISOKIM KOMFOROM
Zaštita od insekata se nalazi u EXTE ELITE XT između kućišta roletne i prozora. To znači da je kapacitet roletne nezavisan od prisustva integrisanog komarnika. *Ovo važi za sve tipove otvaranja.
Rolo komarnik je postavljen u stabilano aluminijumsko kućište zajedno sa mehanizmom opruge. Ovo omogućava da se zaštita od insekata reparira nezavisno od kutije. Aluminijumska zaštita rolo komarnika je jednostavno pričvršćena između ulaza u kutiji.
Na kutijama sa otvorom za reviziju iznutra, ispod i spolja, zaštita od insekata prozora može se naknadno dodati u bilo kom trenutku do visine elementa od 2.550 mm uključujući kutiju.
Cela operacija je brza i laka. Vodilice komarnika su već posebno pripremljene za ovu svrhu. Kada je revizioni poklopac uklonjen, potrebno je samo da umetnete aluminijumski deo sa rolo komarnikom.
*Ugradnja integrisanih komarnika nije moguća u varijanti sa spoljnim žaluzinama.
Integrisana zaštita od insekata u EXTE ELITE XT. Stabilno aluminijumsko kućište komarnika se lako ubacuje u vodilicu. Element za zaštitu od protoka smanjuje buku kotrljanja u kućištu.
Šina vodilica za zaštitu od insekata može se vrlo jednostavno i jeftino opremiti aluminijumskom sekcijom po potrebi.
Brzo, lako i jednostavno
Podela je ušrafljena u kutiju, a specijalni umetci su dostupni za spojnice ili separatore. Posebna karakteristika ovog rešenja je da se rotirajući umetci mogu ubaciti u podelu sa obe strane. Dobijeni otvor u duploj glavi je tada dovoljno velik za osovinu od 60mm, što u velikoj meri olakšava demontažu, posebno sa izbočenom kutijom i pomerenim ulazom.
Ovo visokokvalitetno rešenje sa pomerenim ulazom obezbeđuje kompletan ležaj separatora sa dvodelnim poklopcem. Ovim se u potpunosti izbegava bilo kakvo „zatvaranje“ kućišta. Montaža i demontaža su takođe u velikoj meri olakšani dvodelnim poklopcem.
Pomereni ulaz sa ležajem separatora i dvodelnim poklopcem za brzu montažu
Umetak za razdvajanje (levo) ili spajanje (desno) se može umetnuti u duplu glavu. Montaža i demontaža se stoga mogu izvršiti brzo čak iu najskučenijim prostorima!
PODIZNO KLIZNI SISTEM
Unutrašnja revizija
Kreativnost na delu
Sa inspekcijskim pristupom iznutra, Elite XT 240 x 255 nudi maksimalnu veličinu otvora.
Specijalizovan sistem roletni za podizno klizne sisteme sa unutrašnjim otvorom ostaje potpuno vidljiv i može se lako integrisati kao atraktivan element dizajna sobe sa usklađivanjem boja na zahtev kupca. Kupac može da bira između 200 različitih dekora.
ubina ugradnje: 160 do 200 mm
Adapter: PVC Univerzalni
Vodilice W x H: 60 x 51 mm
Šine za vodilice W x H opciono: 35 x 51 mm
PODIZNO KLIZNI SISTEM
Spoljna revizija
“Nevidljiva kutija”
Malterisana iznutra i spolja, pregled revizije se u ovom slučaju vrši spolja. Kutija je tako nevidljivo integrisana u zidnu strukturu. Ugao za održavanje sa kopčom u velikoj meri pojednostavljuje montažu i uklanjanje.
Dubina ugradnje: 160 do 220 mm
Adapter: PVC Univerzalni
Vodilice W x H: 60 x 86 mm
